Skip to content
  • reach out
    • Email
    • Instagram
logo
Skip to content
  • Home
  • About
    • Meet Ty
    • About E & V
    • Experience
  • Testimonials
  • Listings
    • Featured Listings
    • Past Sales
    • Office Listings
  • Search
    • Custom Search
  • Buyers
    • Buyer’s Guide
    • Cost of Buying
    • Buying Process
    • Mortgage Calculator
  • Sellers
    • Marketing Services
    • Home Evaluation
    • Selling Tips
    • The Cost of Selling
  • More Info
logo
Sold

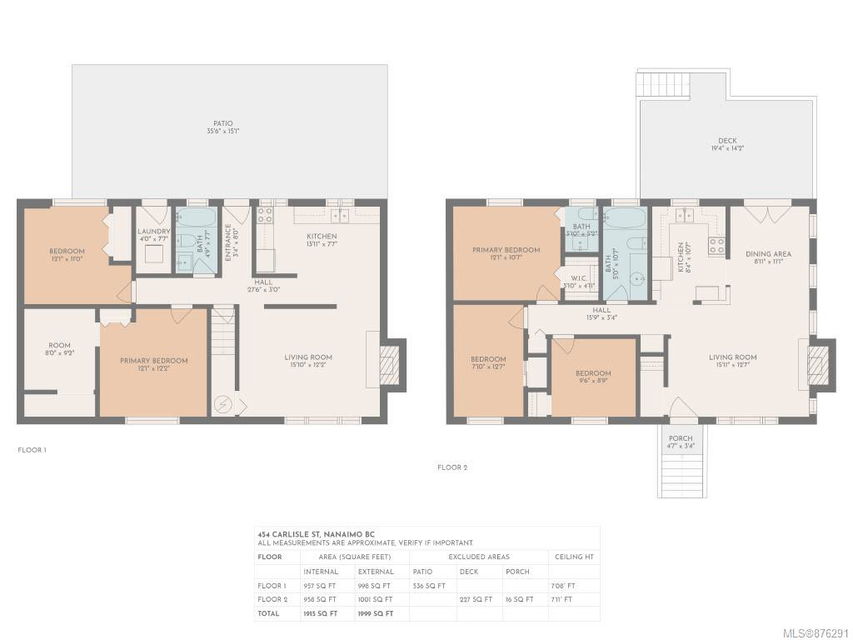
454 Carlisle Street

South Nanaimo – Nanaimo, BC

35
  • 454 Carlisle Street
  • $630,000
  • 5 + 1 bedrooms
  • 3 bathrooms
  • 1,999 sqft
1 of 35
This listing is provided by Engel & Volkers Vancouver Island North
  • Details

  • Sold Price $630,000
  • MLS® # 876291
  • Date Sold August 2021
  • Bedrooms 5 + 1
  • Bathrooms 3
  • Year Built 1976
  • Age 50
  • Floor Space 1,999 sqft
  • Lot 8,842 sqft lot
  • Taxes $3,314
  • Tax Year 2020
  • Features Central Location, Level, Private, Recreation Nearby, Shopping Nearby
  • Amenities Dining/Living Combo
  • Address 454 Carlisle Street, Nanaimo, BC, V9R 1G6

About

Investor Alert**
Excellent opportunity to own this 2000 SQ FT, 5 Bed + Den, 2.5 bath home with a suite. Centrally located, One block from John Barsby High School, transportation, 6 blocks to VIU and close to shops. Nice large private backyard and driveway for RV parking and more. Many renovations and updates throughout totalling 30+k. The home is clean & ready to enjoy as an owner-occupied residence-or assuming the excellent upstairs month-to-month tenants. ALL measurements are approx and should be verified if deemed important. Contact me today for your private showing.

Contact

Ty Collyer Real Estate
  • A featured listing of
    Ty Collyer Real Estate
  • My Office Engel & Völkers Vancouver Island North
  • Email ty@tycollyer.com

Community

Mortgage calculator

Connect

Phone | 778-386-6737
Office | 250-871-1377
Email | ty@tycollyer.com
Instagram | @tycollyerrealestate

 

Office

Engel & Völkers Vancouver Island North
324 5th St, Courtenay,
BC V9N 1K1

Engel & Völkers Vancouver Island North — 324 5th St, Courtenay, BC V9N 1K1 — (250) 871-1377
© 2026 Ty Collyer Real Estate
Home / 876291
Property information is provided under copyright by VIVA. The information is from sources deemed reliable, but should not be relied upon without independent verification. No warranties or representations are made of any kind. The website may only be used by consumers for the purpose of locating and purchasing real estate. Listing data last updated 2026-05-11T13:00:48Z.
Powered by Avenue
The growth engine for driven real estate professionals.